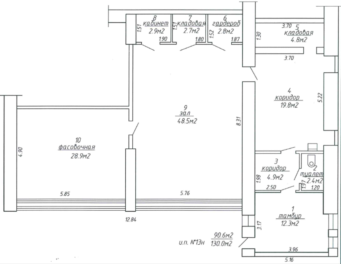
Проспект Партизанский 147
Модернизация изолированного помещения под магазин «Обои»:
- демонтаж не несущих перегородок;
- перенос санитарного узла;
- организация дополнительного входа;
- изменение существующей входной группы.
Нужна консультация?
Наши специалисты ответят на любой интересующий вопрос
Задать вопрос
|
Менеджеры компании с радостью ответят на ваши вопросы, произведут расчет стоимости услуг и подготовят коммерческое предложение.
|
Заказать проект
|
Фотогалерея
1
/ 1
- Комментарии
Загрузка комментариев...
