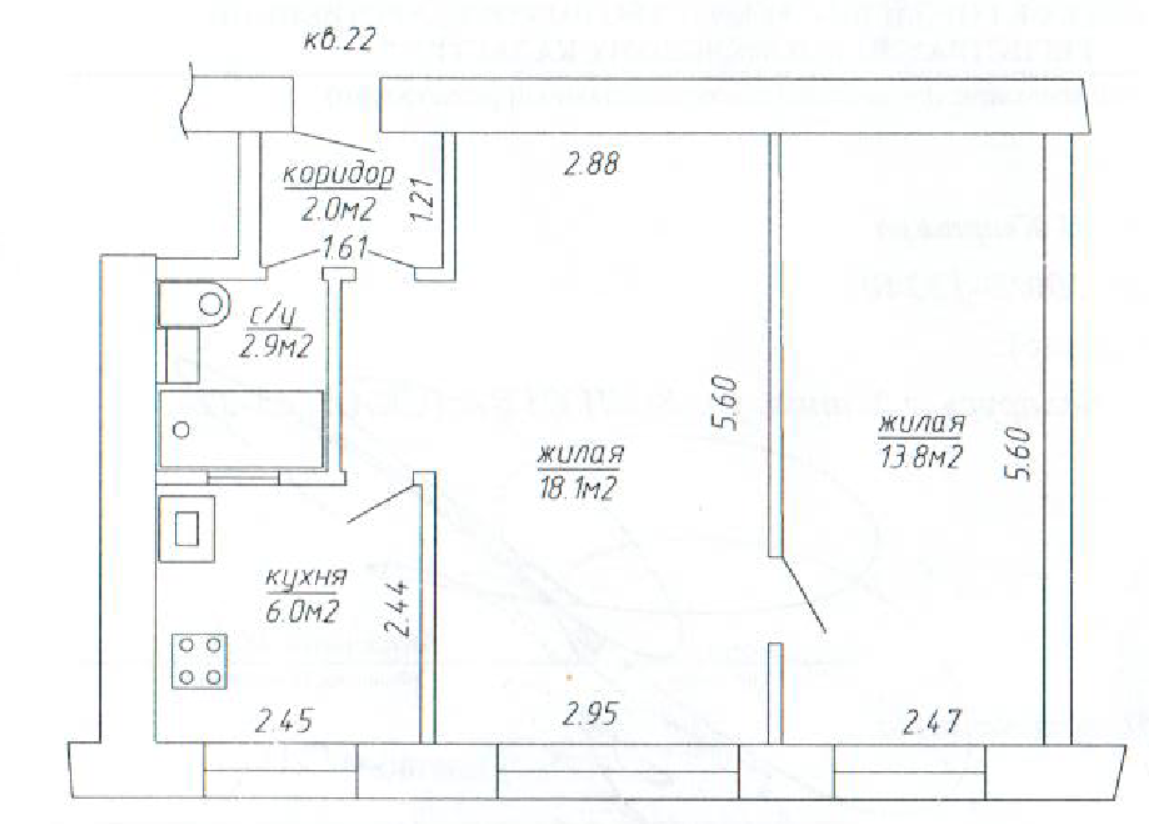
Минск, ул. Волгоградская 43-22
Реконструкция изолированного помещения (в разработке):
- демонтаж дверного блока, с последующей закладкой дверного проема;
- демонтаж не несущих перегородок;
- возведение перегородок с целью устройства туалета;
- демонтаж подоконной части с последующей установкой дверного блока;
- устройство крыльца;
- чистовая отделка стен и потолка, чистовое покрытие пола проектом не предусмотрены.
Нужна консультация?
Наши специалисты ответят на любой интересующий вопрос
Задать вопрос
|
Менеджеры компании с радостью ответят на ваши вопросы, произведут расчет стоимости услуг и подготовят коммерческое предложение.
|
Заказать проект
|
Фотогалерея
2
/ 2
- Комментарии
Загрузка комментариев...
